网站首页
关于宏宸
签单保障
联系我们
宏宸简介
招聘信息
实体展厅
家装套餐
6系套餐
5系套餐
合作品牌
装修图库
设计师
最新优惠
宏宸口碑
最新开工
宏宸工长
装修分享
当前位置:
首页
>>
装修案例
>>
法式
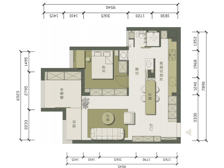
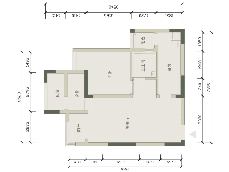
中年夫妇的55㎡,森林绿打造法式复古风!宽敞餐厨、榻榻米室,幸福爆棚!
类型: 法式
品牌: OTHER
规格:
单位: 件
重量:
环保标准:
简介:
这次案例是一对中年夫妇55㎡的小两居,虽然房子不大, 但仍希望装下满满的生活日常: 宽敞舒适且功能齐全的厨房, 可满足家人朋友聚餐的带岛台的餐厅, 保留两间卧室,且主卧要有大床和衣帽间…… 原户型整体方正,但空间分割过于浪费, 缺乏采光的客餐厅呆板乏味,狭长的封闭式厨房使用舒适感较差; 次卧结构不合理,难以居住。 整个房子的动线混乱,穿梭之间, 使人感觉路途遥远且不便。 好在户型承重墙限制较少, 设计师拆除了隔墙,重新整合布局。 改造要点: 1、拆除厨房隔墙改为开放式,将餐厅置于公共区域中心,加入岛台呈一字型布局,四周形成洄游动线; 2、原次卧与阳台打通,做榻榻米,可休闲也可作为临时卧室; 3、卫生间移至原生活阳台,干湿分离设计; 4、各空间增加相应的储物区,久住不乱。 洄游路线里暗藏了多个生活功能区,同一空间中,家人各自忙碌, 却不影响互动与交流。 欢声笑语伴着热气腾腾的美食香味, 自由地穿梭其中,这大概就是家的意义。
中年夫妇的55㎡,森林绿打造法式复古风!宽敞餐厨、榻榻米室,幸福爆棚!
一共(
23
)张图
介绍
相关产品
网站首页
|
团装小区
|
装修案例
|
优秀工长
|
联系我们
|
招聘信息
BACK TOP