Reloading...
网站首页
关于宏宸
签单保障
家装套餐
合作品牌
装修图库
设 计 师
宏宸工长
宏宸口碑
最新开工
施工现场
实体展厅
材料配送
招聘信息
联系我们
郭建德
郭建德: 职务:首席设计师
毕业于北京传媒大学 工作经验:9年
擅长风格:现代简约、简欧风格、地中海风格、中式
主笔作品:东亚逸品阁、新通国际、建国伟业。
设计理念:珍惜有限空间,创意无限品位。
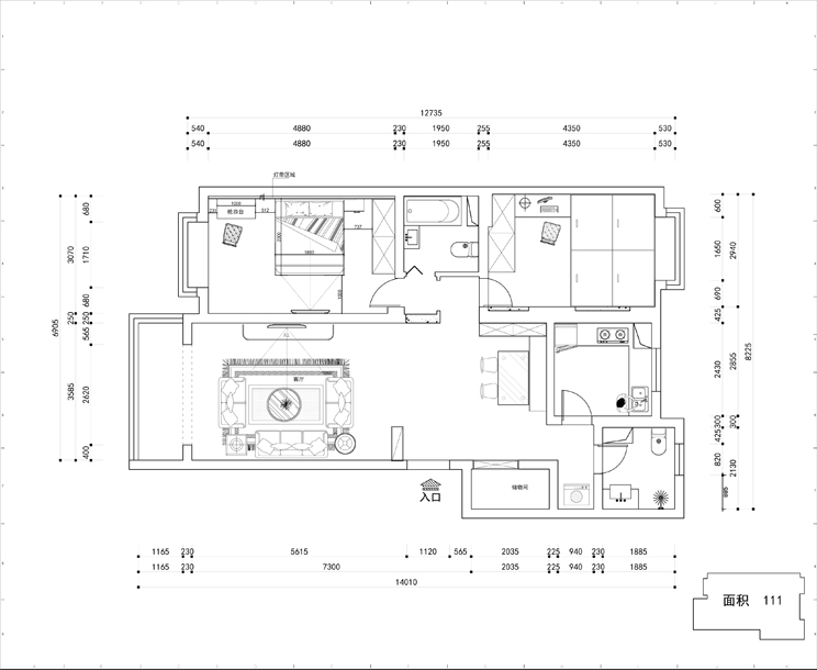
马家堡案例展示:
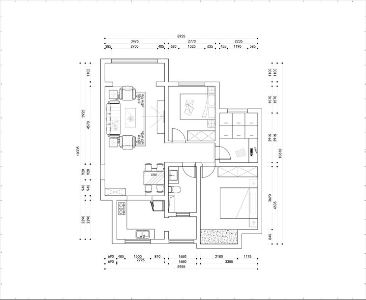
东风北桥怡思园案例作品展示:
中式案例展示:
简约风格展示
上一个:
董成羽
下一个:
王学明
装修报名
姓名:
类型:
请选择类型
住宅装修
办公装修
门市装修
其他装修
一居室
两居室
三居室
四居室
复式
别墅
区域:
请选择区域
海淀区
朝阳区
西城区
东城区
昌平区
大兴区
石景山区
通州区
丰台区
顺义区
门头沟
房山区
密云
怀柔
燕郊
固安县
香河县
其它地区
地址:
面积:
预算:
请选择预算
2万以内
2-4万
4-6万
6-8万
9-15万
15万以上
电话:
要求:
宏宸装饰
www.hcgzjlb.com