Reloading...
网站首页
关于宏宸
签单保障
家装套餐
合作品牌
装修图库
设 计 师
宏宸工长
宏宸口碑
最新开工
施工现场
实体展厅
材料配送
招聘信息
联系我们
杨立军
从业年限:8年
设计理念:设计并非随心所欲,而是追寻自然法则,在各个元素中取得平衡,实用放在首位,其次是视觉效果。
擅长风格:现代简约、简欧、北欧、中式、美式
案例1:
设计说明:本案是围绕现代简约为主题,加上一些不锈钢条做装饰,相互结合,相互交融。以简洁明快的设计风格为主调,简洁和实用是现代简约风格的基本特点。让人感觉舒适和恬静,适度的装饰使家具不缺乏时代气息,使人在空间上得到精神和身体的放松,并紧跟时尚的步伐,也满足现代人的乐趣。
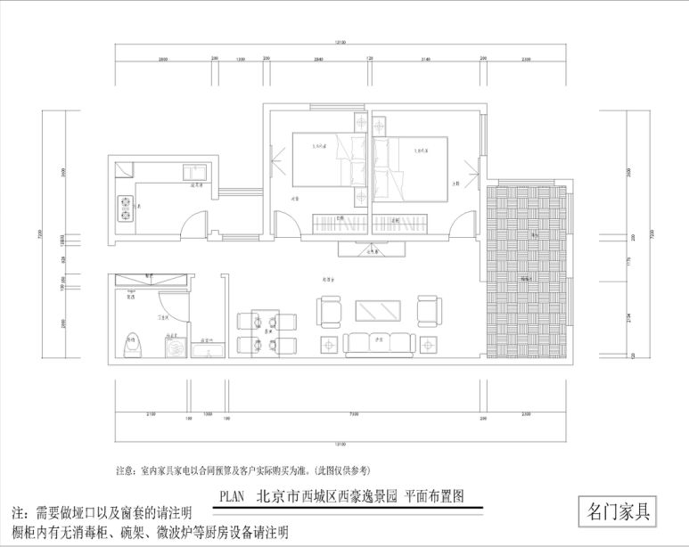
平面布置图:
效果图:
上一个:
史俊婷
下一个:
董成羽
装修报名
姓名:
类型:
请选择类型
住宅装修
办公装修
门市装修
其他装修
一居室
两居室
三居室
四居室
复式
别墅
区域:
请选择区域
海淀区
朝阳区
西城区
东城区
昌平区
大兴区
石景山区
通州区
丰台区
顺义区
门头沟
房山区
密云
怀柔
燕郊
固安县
香河县
其它地区
地址:
面积:
预算:
请选择预算
2万以内
2-4万
4-6万
6-8万
9-15万
15万以上
电话:
要求:
宏宸装饰
www.hcgzjlb.com